| | 加工定制:是 | | 处理量:20-350 T/h | | 品牌:振云 | |
| | 型号:PHX | | 总功率:3 kw | | 周边线速度:1-3 m/min | |
一、概述
用于污水处理厂、供水厂和工业生产中的平流式沉淀池或斜管沉淀池,排除沉降在池底的污泥和撇除池面的浮渣。
二、结构及工作原理
PHX型平流池行车式吸泥机用于污水处理厂、供水厂和工业生产中的平流式沉淀池或斜管沉淀池,排除沉降在池底的污泥和撇除池面的浮渣。沉淀池底为水平池底。
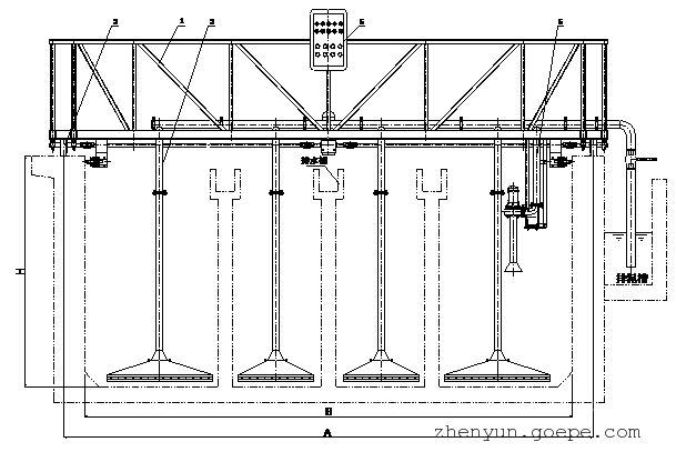
本设备有两中吸泥方式,一种是泵吸,一种是虹吸。 如图7-1 、图2 所示,PHX型平流池行车式吸泥机由1 工作桥、2 驱动行走装置、3 吸泥系统、4 撇渣装置(选择件)、5 电控柜、6 虹吸发生器(虹吸方式)等组成。在斜管沉淀池中使用时,还需安装池底吸泥架和吸泥吊架。原水经沉淀池沉淀后,上清液从溢流堰或排水管排出,污泥在重力作用下沉降,在整个沉淀池底形成一层浓度较高的泥层。驱动行走装置带动工作桥和吸泥系统在 沉淀池中来回行走,将池底污泥刮集至各吸泥管口,污泥被污泥泵或虹吸管 排出池外,同时池面浮渣被撇渣装置刮到位于池端的浮渣槽排出。根据污泥量来调节排泥的次数和每次排泥的时间。
三、主要特点
泵吸方式采用无堵塞潜污泵提升污泥,具有无堵塞、噪声低、能耗小、安装维修方便等特点。沉淀池可以有多条纵向排水槽或排水管; 虹吸方式采用水射器形成真空,简单可靠;
行走方式有轨道式和无轨式;程序控制刮吸泥机定时全天候往返吸泥; 过载工作时自动报警停机。
四、外形结构和主要技术参数
PHX-B 泵吸型平流池行车式吸泥机见图1,PHX-H 虹吸型平流池行车式吸泥机见图2
主要技术参数见参数表 。
图1 PHX-B 泵吸型平流池行车式吸泥机

图2 PHX-H 虹吸型平流池行车式吸泥机
主要技术参数表
参数
型号 |
轮距A
(m) |
行走功率
(kW) |
行走速度
(m/min) |
虹吸式 |
泵吸式 |
排泥量
(m3/h) |
斜管池 |
| 虹吸泵(kW) |
潜污泵(KW) |
H1
(mm) |
L1
(mm) |
| PHX-4 |
4 |
0.18 |
~1.0 |
0.75 |
1.5~2.2 |
20~40 |
800 |
500 |
| PHX-6 |
6 |
2×0.18 |
30~60 |
| PHX-8 |
8 |
40~70 |
950 |
600 |
| PHX-10 |
10 |
100~140 |
| PHX-12 |
12 |
100~140 |
1050 |
650 |
| PHX-14 |
14 |
100~140 |
1100 |
| PHX-16 |
16 |
2×0.25 |
150~210 |
1200 |
| PHX-18 |
18 |
150~210 |
1650 |
750 |
| PHX-20 |
20 |
200~280 |
850 |
| PHX-22 |
22 |
200~280 |
850 |
| PHX-25 |
25 |
250~350 |
850 |
注: 1、本公司也可生产行走轮为钢轮的轨道式吸泥机,上表参数同样适用于轨道式吸泥机,两边钢制轻轨中心线跨距为:(池宽) L+300 ~ 400 ,池宽15 米以下采用15Kg /m 的轻轨,池宽16 米以上采用22Kg /m 的轻轨。
2、 凡采用虹吸式吸泥机的沉淀池,池内水位与出泥口的水位差根据污泥比重计算。
3、表中吸泥管数量和泵吸排泥量为推荐值,可根据用户实际情况调整。
4、订货时请提供土建资料和电气控制要求。
5、需要轨道、滑触线、出水堰时请注明。
1 、管道系统 2 、传动装置 3 、真空系统 4 、主梁 5 、桁架 6 、电控系统
图3 PHX-H-X 虹吸型斜管沉淀池行车式吸泥机
1 、传动装置 2 、吸泥系统 3 、桁架 4 、主梁 5 、电控系统
图4 PHX-B-X 泵吸型斜管沉淀池行车式吸泥机