- LMA高效沉淀池振云
详细信息
品牌:振云 型号:LMA 加工定制:是 沉淀池种类:斜管沉淀池 单池处理水量:10-125 m3/h 进水口尺寸:89-219 mm 出水管口径:89-219 mm 一、 概述
高效斜板沉淀池应用哈真浅池理论如图所示,在池长为L,池深为H,池中水平流速为v,颗粒沉速为u0的沉淀池中,在理想状态下,L/H=v/ u0。如果处理得水流量为V,沉淀池底面积为A,沉淀时间为t,则V=H·A/t,t=L/v=H/ u0,即得V=A u0。
可见,沉淀池的处理能力,只与沉淀池的底面积A和沉降速度u0有关,而与沉淀池的深度无关。
如果用水平隔板,将H分为3等层,每层深H/3,在u0与v不变的条件下,则只需L/3,就可将沉速u0的颗粒去除,也即总容积可减小到1/3。如果池长L不变,由于池深为H/3,则水平流速可增加到3v,仍能将沉速为u0的颗粒沉淀掉,也即处理能力可提高3倍。
把沉淀池分成n层就可把处理能力提高n倍。这就是浅池沉淀理论。
二、工作原理
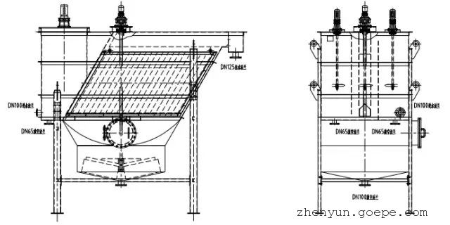
高效斜板沉淀池主要用于废水预处理和好氧池后端,废水由进水管进入池体,向下流通过位于池体中间的进水室,由导流板反射,再通过里面的进水布水口进入斜板。随着溶液向上流动,其所含的固体颗粒就沉淀在平行的斜板组件上,然后划入池底的污泥斗中。在污泥斗中,通过刮泥机,污泥浓缩后在从底部污泥出口排出。而澄清液离开斜板通过顶部的出水通路口流出。
然后通过可调出水堰流汇集,由出水口流出。在斜板顶部设计的通路口的目的是使澄清液在通过集水渠时形成一个压力差,保证斜板间流 态分布均匀,从而使整个面积都被利用。这样操作的可靠性增大,减少溶液流态影响,还减少了结垢淤泥的可能。(如图)
三、主要组成
该斜板沉淀池主要包括:沉淀池体、斜板组件、集水槽、可调出水堰板、集泥刮泥机(可选)、混合反应段(可选)等部件组成。
四、设备特点
占地面积
增大沉淀能力
沉淀面积增大。
斜板可以对沉淀物起到再凝聚作用,使絮状物增大,易于沉淀。
斜板沉淀创造了层流条件,沉淀效果好。
下沉污泥浓度增大。
排出的清水量整年保持稳定,而且不存在污泥覆盖。
精心设计斜板支撑结构,防止变形。
卓越的液体压力设计和流量控制特点,保正斜板上均匀的流量分布。
通过使液体从侧边进入板组而不是从底部,不会干扰已沉降的物质——不间断沉降。
五、设备分类
根据不同水质的设计要求可分为3类:
a. 普通高效斜板沉淀池;
b. 带刮泥机高效斜板沉淀池;
c. 带混合反应段和刮泥机高效斜板沉淀池;
a.普通高效斜板沉淀池 此类普通高效斜板沉淀池不含刮泥机,适用于污水中污泥负荷较小,污泥沉降性能好的水质。污泥通过下端泥斗浓缩后排出。
b.带刮泥机沉淀池 此类带集刮泥机的高效斜板沉淀池,适用于污水中污泥负荷较大,污泥沉降性能好的水质,污泥通过下部刮泥机刮至泥斗后排出。
c.含混合反应段高效斜板沉淀池 根据客户需求和工艺设计要求,高效斜板沉淀池前端可加混合反应段,配套相应的搅拌机污泥通过下刮泥机刮至泥斗后排出。
六、适用行业
工业废水处理:工业生产用水、工业化学-纯化和浓缩、纸浆&造纸厂、钢铁行业,除磷、 金属氢氧化物污水、密封/真空过滤净化、生物清洁过程的纯化、土豆及蔬菜产生的循化水、发电厂除尘器水
市政废水处理:市政污水、预处理、反洗水处理、一级、二级处理、三级处理、污泥浓缩
不含刮泥机设备参数表含刮泥机设备参数表 -
-
产品搜索
-
产品分类
-
GL型链板回转式除污机
-
HF型回转式固液分离机
-
NJL型内进流式网板细格栅
-
WB型网板式阶梯格栅除污机
-
ZG型转鼓式螺旋除污机
-
WLN型旋转微滤机
-
XL型旋转滤网
-
GZG型周边传动刮泥机
-
ZSB转刷网蓖式清污机
-
PD型皮带输送机
-
WLS型无轴螺旋输送机
-
YS型螺旋输送压榨机
-
LYZ型螺旋压榨机
-
XLC型旋流沉砂池除砂机
-
SF型砂水分离器
-
QXS型桥式吸砂机
-
ZQX 周边传动全桥式多管吸泥机
-
ZXN型悬挂式中心传动浓缩刮泥机
-
CZG型垂架式中心传动(浓缩)刮泥机
-
ZXJ 中心传动单管吸泥机
-
PHX型行车式刮吸泥机
-
PHG型行车式提板刮泥机
-
ZYLS型连续流砂过滤器
-
ZYZP型纤维转盘滤池
-
JXG型机械过滤器
-
LC型石灰料仓
-
JY型干粉投加装置
-
DL型叠螺污泥脱水机
-
DNY型带式浓缩压滤一体脱水机
-
CZ型不锈钢插板闸门
-
XBS型旋转式滗水器
-
LMA型高效沉淀池
-
ZF型组合气浮
-
WN型污泥斗
-
SSG型水力筛
-
-
公司相册
扫一扫,手机浏览





















